btn_menu 15-5141-5523 / 11-2736-1192
Fotos Fotos
Datos Volver

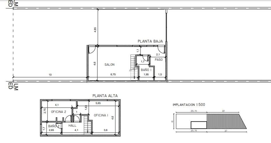
Galpón en Burzaco

Location BUENOS AIRES al 1600 - Burzaco

Prev
Prev
Venta
Bajó de precio
USD 160.000 Rebaja 9 %
Propiedad

Depósitos / galpones

Baño

2 baños

Superficie

Sup. cubierta 142m2

Codigo Código de propiedad: TGL7144702

Datos Acerca de la propiedad

Buenos Aires 1644, Burzaco 
Excelente galpón a terminar de 427 m2 totales y 142,44 cubiertos 

El ingreso es mediante portón con espacio para varios vehículos
Por un lado se encuentran las oficinas distribuidas en dos plantas y por otro un amplio galpon cubierto con persiana

(se encuentra alquilado actualmente hasta el mes de Septiembre 2025)

Comodidades Comodidades

Ver más vermas

Datos Ubicación

Venta
Bajó de precio

USD 160.000 Rebaja 9 %

Datos Propiedades Relacionadas

Contacto

¿Te interesa esta propiedad?
Contactate ahora

Ver
Chatea con nosotros
Whatsapp